- 市川市の不動産なら慶和住宅
- いちかわ“この街大好き!”エリア情報
- 稲荷木・高谷エリア
稲荷木・高谷エリア
稲荷木・田尻・高谷・原木・二俣・上妙典・高谷新町・二俣新町
都心へのアクセスが便利な、東京メトロ東西線。インターチェンジも有り、どこに行くにも便利です。お買い物は、大型ショッピングセンター「コーナン湾岸市川モール」。南に位置する、健康市川温泉「クリーンスパ市川」はプールや温浴施設、ジム、スタジオ、レストラン、大広間などを併設しています。

-

コーナン湾岸市川モール
ホームセンターやスーパー・ドラッグストア、ペットなど買い物施設が多彩。幅広いニーズに対応できる商品構成を実現しています。
-

クリーンスパ市川
プール、ジムを兼ね備えた複合型温泉施設です。源泉かけ流しの露天風呂や優しい木の香りがする五右衛門風呂を完備しています。
取材レポート一覧
おすすめ物件一覧
-
市川市原木3丁目
新築一戸建
価格4,790万円
東京メトロ東西線「原木中山」駅徒歩12分~12分
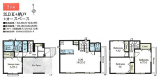
東京メトロ東西線で都心直結の「原木中山」駅と複数路線が乗入れるターミナル駅である「西船橋」駅の2駅が利用可能な利便性高い立地に新築戸建が出ました! 全5棟現場ですから、お住まいになってからも安心のコミュニティです。 京葉道路「原木IC」も近いため都心方面へも千葉方面へも出やすく休日のレジャーも大変便利な立地です。 現地だけでなく周辺環境のご案内もしております。地域密着型の不動産アドバイザーにお任せ下さい! 送迎サービスも行っておりますのでお気軽にお問合せ下さい。 ■LDK16帖以上 ■食器洗浄乾燥機と浴室換気乾燥暖房機が標準装備 ■コミュニケーションの取りやすいリビングイン階段 ■便利な全居室収納付き ■周辺に商業施設多数あり
-
市川市原木3丁目
中古一戸建
価格2,999万円
総武線「西船橋」駅徒歩15分
JR総武線「西船橋」駅まで自転車約6分、東西線「原木中山」駅まで自転車約8分ですので、毎日の通勤・通学・お買い物が快適。原木ICも近く車通勤にも便利な立地です。現地だけでなく周辺環境のご案内もしております。地域密着型の不動産アドバイザーにお任せ下さい。送迎サービスも行っておりますのでお気軽にお問合せ下さい。 ・全室二面採光 ・採光豊かな2階リビング ・水まわり集中設計 ・洗面所からバルコニーへ直接出られるため洗濯物干しも楽々 ・駐車場1台分 ・2年間の安心保証付き
-
市川市原木3丁目
新築一戸建
価格5,390万円~
東京メトロ東西線「原木中山」駅徒歩12分~12分
南向きの採光がうれしい全3邸の新築戸建。スーパー徒歩9分で日常も快適に。現地だけでなく周辺環境のご案内もしております。地域密着型の不動産アドバイザーにお任せ下さい。送迎サービスも行っておりますのでお気軽にお問合せ下さい。 ・ZEH水準住宅 ・長期優良住宅 ・設計住宅性能評価書取得済 ・建設住宅性能評価書取得予定 ・フラット35利用可能
-
市川市原木3丁目
新築一戸建
価格4,990万円
東京メトロ東西線「原木中山」駅徒歩14分
-
市川市二俣1丁目
マンション
価格3,990万円
総武線「西船橋」駅徒歩12分
5路線利用可能でアクセス良好。水まわり設備一新、南東向きの明るい住まい。宅配ボックス完備で便利。スーパー徒歩3分、生活利便性も高い立地です。現地だけでなく周辺環境のご案内もしております。地域密着型の不動産アドバイザーにお任せ下さい。送迎サービスも行っておりますのでお気軽にお問合せ下さい。 ・新規内装リフォーム ・アフターサービス保証付き ・宅配ボックスがあり不在時も安心して荷物受取可能 ・駐輪場あり(1台目無料、2台目100円/月、3台目200円/月) ・ミニバイク置場あり(500円/月)※要ステッカー貼付
-
市川市原木3丁目
土地
価格1億1,990万円
総武線「西船橋」駅徒歩16分
主要ターミナル「西船橋」駅徒歩圏内。都心へのアクセスが良好な立地で、南向きの採光がうれしい約90坪の土地が出ました。建築条件がありませんので、お好みのハウスメーカーで建てられます。間取り図のプランも無料にて作成いたします。 ・土地面積約298.99m2(90.44坪) ・南側公道に面した整形地 ・JR総武線、武蔵野線、京葉線、地下鉄東西線が利用可能 ・周辺に商業施設多数あり生活環境良好 ・現況更地
-
市川市田尻4丁目
マンション
価格4,199万円
東京メトロ東西線「原木中山」駅徒歩9分
新規内装リフォーム済みの3LDK。陽光あふれる南向き5階住戸は、視界を遮る建物もなく、開放的な眺望が魅力です。 システムキッチンには食器洗浄機・浄水器を完備。追い焚き機能や浴室換気乾燥機など、設備も充実。 オートロックやモニター付きインターホンで安心の暮らしを。ペットとの暮らしもOK(細則有)。 スーパー徒歩5分、コンビニ徒歩3分と生活利便性も良好です。 ■安心のアフターサービス保証付き ■住宅ローン減税適合物件 ■ペット飼育可(犬は小型犬2匹迄、飼育細則有)
-
市川市原木1丁目
マンション
価格3,798万円
東京メトロ東西線「原木中山」駅徒歩9分
都心へのアクセス良好。東京メトロ東西線「原木中山」駅徒歩9分、通勤・通学をスマートに。 広々69.47m2の3LDKは、ご家族の成長に合わせて変化するライフスタイルにも対応。 リフォーム済みで新生活をすぐにスタートできます。 敷地内には、気分転換に最適なテニスコート(有償)も完備。 快適な都市生活とゆとりある住まいを両立しませんか。まずは現地で、この開放感と利便性をご体感ください。
-
市川市田尻5丁目
マンション
価格4,480万円
東京メトロ東西線「原木中山」駅徒歩10分
2面バルコニーの角部屋で陽当たり良好。3LDK、83m2超えのゆとりある空間。ペットと暮らせる安心のオートロック付マンション。家事効率を高める食器洗浄機やパントリーも備え、快適な暮らしをサポートします。 ・室内一部リフォーム ・住宅設備機器延長保証サービス対応可(2年) ・2019年12月にフルリフォーム実施済 ・ペット飼育可(細則有) ・敷地内駐車場あり(空状況確認要)
-
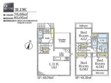
市川市田尻3丁目
マンション
価格2,588万円
東京メトロ東西線「原木中山」駅徒歩7分
南東角部屋3LDK。内装リフォーム済みですぐお住まいになれます。いつでも内覧可能です。スーパーまで徒歩3分ですので、毎日のお買物も快適。現地だけでなく周辺環境のご案内もしております。地域密着型の不動産アドバイザーにお任せ下さい。送迎サービスも行っておりますのでお気軽にお問合せ下さい。 ・ペニンシュラ型システムキッチン(食洗機完備) ・キッチンカップボード新設 ・ユニットバス1216にサイズアップ(浴室乾燥機付き) ・エアコン全室設置可能(機種の制限有) ・ウォークインクローゼット2ヵ所付き ・ペット飼育可(細則有)
-
市川市原木3丁目
マンション
価格1,380万円
総武線「西船橋」駅徒歩16分
天気が良い日には、東京タワーやスカイツリーを望むことが出来るお部屋です。リフォーム未施工なのでご自身の思うようにリフォーム出来ますよ。空室ですのでいつでも内覧可能です。 ・68.61m2の3LDK ・ハウスクリーニング済 ・日当たりの良い南西向きバルコニー ・管理人常駐で管理体制良好 ・2012年耐震補強工事実施済 ・ペット可(飼育細則有) ・安心の子育て環境良好 ーーー 現地見学受付中。 資料請求からご案内まで、お気軽にお問合せください。
-
市川市原木3丁目
マンション
価格2,599万円
総武線「西船橋」駅徒歩15分
新規リノベーション物件!【ご案内随時受付中・資料請求のみも大歓迎】 東京メトロ東西線「原木中山」駅徒歩15分。平成3年3月築、総戸数62戸8階建てマンション1階3LDKのお部屋が出ました! エントランスにはオートロック、1階にトランクルームや多目的ホールが設置されています。 周辺はマンションや戸建てが多く建つ開放感ある住宅街でスーパー、ホームセンター、ドラッグストア、家電量販店などの商業施設が近くにあり日常のお買物も大変便利。原木インターにも近いためお車でのアクセスも良好なほか、5路線が乗入れる「西船橋」駅も徒歩16分で日々の通勤や通学だけでなく多彩なアプローチが魅力です。 お部屋は1階部分のため30平米の広々とした専用庭付きでガーデニングや子どもの遊び場として楽しめます。充実設備のリノベーション物件ですので、お引渡し後すぐに新生活をスタート出来ます! ■水まわり設備一新 ■全室フローリング仕様3LDK ■雨の日のお洗濯に便利な浴室乾燥機付き ■新耐震基準 ■大規模修繕工事(2023年実施) ■近隣商業施設多数あり
-
市川市原木3丁目
マンション
価格2,980万円
東京メトロ東西線「原木中山」駅徒歩16分
フルリフォーム済みの快適空間で新生活を。採光豊かな三面採光角住戸で、明るく開放的な3LDK。全居室に収納を備え、すっきりとした暮らしを実現。キッチンには便利な食器洗浄乾燥機、バスルームには浴室換気乾燥機を完備。ペットとの暮らしも叶う(細則有)、安らぎに満ちた住まい。アフターサービス保証付きで安心してお住まいいただけます。都心へのアクセスも良好な原木中山駅・西船橋駅が利用可能。ぜひ一度、現地でお確かめください。
-
市川市原木3丁目
マンション
価格2,690万円
東京メトロ東西線「原木中山」駅徒歩15分
三方バルコニーの角部屋で、陽光あふれる暮らしを。リノベーション済みの室内は、南向きの窓から明るい日差しが降り注ぎます。広々76.5m2の3LDKには、ゆとりあるウォークインクローゼットを完備。家事動線もスムーズで、快適な毎日をサポートします。東西線「原木中山」駅徒歩15分、総武線「西船橋」駅徒歩16分。即入居可能で、新しい生活をすぐに始められます。ぜひ一度、現地で開放感と明るさをご体感ください。
-
市川市二俣1丁目
マンション
価格2,100万円
総武線「西船橋」駅徒歩13分
【ご覧頂きありがとうございます!詳細は担当営業までお問合せ下さい!】
-
市川市原木3丁目
新築一戸建
価格4,990万円
東京メトロ東西線「原木中山」駅徒歩14分
東京メトロ東西線「原木中山」駅徒歩14分の閑静な住宅街に車庫付き4LDKの新築戸建が出ました! 5路線乗入れの「西船橋」駅徒歩17分も利用可能で、原木ICまで車2分とアクセスの良い立地です。 南道路で光と風を取り込む全室二面採光4LDKは、床暖房や食器洗浄機、浴室暖房機など話題の設備が標準装備! ウォークインクローゼット、シューズインクローク、パントリーなど、あれば嬉しい収納スペースも充実! 詳しい仕様や住宅設備の資料もご用意しておりますので、お気軽にご請求ください。 ■安心の地盤保証20年 ■17.3帖のゆとりあるLDK ■2階と3階それぞれにL字型バルコニーを配置 ■近隣に商業施設多数あり
-
市川市高谷3丁目
中古一戸建
価格3,300万円
東京メトロ東西線「原木中山」駅徒歩9分
北西側8m公道、南西側と北東側は隣地通路につき日当たり・開放感良好です。 ・全室2面採光の明るい住まい ・各居室6帖以上 ・カースペースあり(車種による) ・市役所、図書館、公民館が徒歩圏で生活便利 ・駅前に商業施設が充実 ーーー 現地見学受付中。 資料請求からご案内まで、お気軽にお問合せください。
-
市川市稲荷木3丁目
中古一戸建
価格1,980万円
総武線「本八幡」駅徒歩20分
現況空家に付きいつでもご見学可能です。物件だけでなく周辺環境も合わせてご案内致しますのでお気軽にお問い合わせ下さい。 自住用としてお好みに合わせたリフォームをされるのも良いですし、そのまま収益物件としても活用できますよ。
-
市川市原木3丁目
中古一戸建
価格4,580万円
総武線「西船橋」駅徒歩19分
2019年築、3SLDKの広々空間。 5路線乗入れ「西船橋」駅も利用可能で都心へのアクセスも良好! 居住中に付きご見学の際はご予約が必要です。お気軽にご連絡下さい。 ご案内の際は物件だけでなく周辺環境もご案内致します。送迎サービスもございます!
-
市川市稲荷木3丁目
新築一戸建
価格4,990万円
総武線「本八幡」駅徒歩23分
広々とした17帖LDKと2階にリラックスできるプライベートな空間がある4LDK! 食洗機や浴室乾燥機など快適な暮らしをサポートする設備が標準装備!まとまった水まわりで家事動線も良好です。 建物は住宅性能表示制度の6項目で最も高い等級を取得した安心住宅(性能評価書付き)。 小学校徒歩8分、幼稚園徒歩5分など子育て環境も整っています。 ■ZEH水準の省エネ住宅 ■住宅性能表示W取得(設計+建設) ■水まわり集中設計 ■便利な全居室収納 ■カースペース2台可
-
市川市田尻5丁目
土地
価格4,499万円
東京メトロ東西線「原木中山」駅徒歩9分
都心部へのアクセス便利な立地です。建築条件がありませんので、お好みのハウスメーカーで建てられます。間取り図のプランも無料にて作成いたします。 ■土地面積約76.33m2(約23.08坪) ■車通りの少ない静かな住環境 ■東京外環自動車道「市川南IC」近く ■建築条件なし 【現地見学受付中】現地だけでなく周辺環境のご案内もしております。 地域密着型の不動産アドバイザーにお任せ下さい。送迎サービスも行っておりますのでお気軽にお問合せ下さい。
-
市川市原木3丁目
土地
価格3,799万円
東京メトロ東西線「原木中山」駅徒歩15分
生活便良好なエリアです。建築条件がありませんので、お好みのハウスメーカーで建てられます。間取り図のプランも無料にて作成いたします。 ・土地面積約101.28m2(約30.63坪) ・建築プランの入れやすい整形地 ・閑静な住宅街 ・周辺環境充実 ・建築条件なし ーーー 現地見学受付中。 資料請求からご案内まで、お気軽にお問合せください。




























