区画の整った閑静な住宅地に平成30年築3LDKの戸建が出ました!
南西側6m公道に面しているため日当たり良く、車の出し入れも楽々。駐車場2台付きでセカンドカーや来客対応にも安心です。
JR総武線「市川」駅バス17分、停歩4分。バス停が近く運行本数も多いため通勤通学も安心!総武快速線「市川」駅から「東京駅」まで19分、外環自動車道「市川北IC」車で1分と交通アクセス便利です。
周辺は戸建住宅の多い閑静な住宅街で小・中学校は徒歩8分圏内!公園や幼稚園も近く子育て世代のご家族様におすすめの立地です。
現況空き家のためいつでも内覧可能です。陽当たりの良さを是非現地でご体感ください!
- 4,780万円
- 交 通北総線「北国分」駅 徒歩23分
- 所在地市川市曽谷8丁目
- 土地面積161.98m²
- 建物面積100.19m²
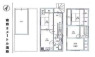
- 間 取3LDK
担当スタッフ:五十石 賢司・広々LDK18帖、スムーズな水廻り動線
・吹抜けとウッドデッキで開放感のあるリビング
・シューズクローク、ウォークインクローゼットなど収納豊富
・全室南向き陽当り良好
・小・中学校近くお子さまも無理なく通えます
ーーー
現地見学受付中。
資料請求からご案内まで、お気軽にお問合せください。