東京メトロ東西線「妙典」駅徒歩19分。戸建とマンションが共存する閑静な住宅街に車庫付き3階建2SLDKの新築戸建が出ました!
スーパーやコンビニ等の商業施設が徒歩10分圏内に点在するエリアで住環境良好!
お子様の通学が安心な小学校まで徒歩4分!公園も徒歩2分と近いため子育て家族にもおすすめの立地です。
建物は住宅性能表示制度の6項目で最も高い等級を取得した安心住宅(性能評価書付き)。
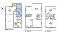
豊かな採光とプライバシーを確保した2階LDK約17帖の2SLDK設計!
南東側6m公道×北西側4m通路につき日当たり良く、開放感も良好です。
詳しい仕様や住宅設備の資料もご用意しておりますので、お気軽にご請求ください。
- 4,999万円
- 交 通東京メトロ東西線「妙典」駅 徒歩19分
- 所在地市川市宝1丁目
- 土地面積63.69m²
- 建物面積97.33m²
- 間 取2LDK
担当スタッフ:原田 和幸お子様の通学が安心な小学校まで徒歩4分の新築戸建です。商業施設も徒歩10分圏内に点在しているため毎日のお買物にも便利な立地です。現地だけでなく周辺環境のご案内も致します!送迎サービスもございますのでお気軽にお問合せ下さい!
■全室2面以上採光
■リビング折上天井で開放感を演出
■食品ストックに便利なパントリー
■収納付き主寝室6.5帖
■南東向きバルコニー
【現地見学受付中】建築中もご案内できます!
<資料請求>から<ご案内>まで、お気軽にお問合せください。