- 市川市の不動産なら慶和住宅
- 中古住宅をエリアから探す
- 船橋市
- 山手
- 船橋市山手2丁目 中古戸建 エレベーター付4DK
中古住宅
船橋市山手2丁目 中古戸建 エレベーター付4DK
情報更新日:2026/04/19 次回更新予定日:2026/05/03
所在地千葉県船橋市山手2丁目[周辺地図]
交 通東武野田線「新船橋」駅徒歩12分





スーパーやコンビニ、ドラッグストアが徒歩4分以内にある日々暮らしやすい住宅地に鉄骨造の家が出ました!
小学校まで徒歩2分、幼稚園まで徒歩5分のため子育て世代にもおすすめの立地です。
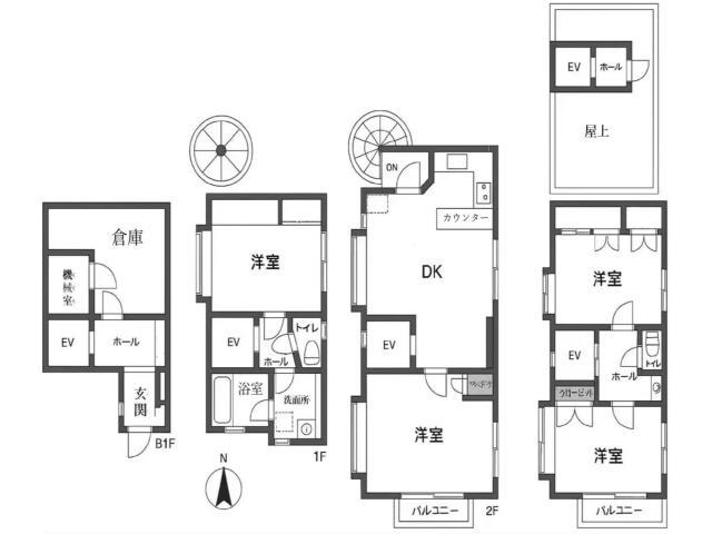
建物は地下1階と屋上付き3階建4DK!南側と北側が公道に面しているため採光・通風良好です。
ホームエレベーター付きなので各階への移動も楽々です。見学のご希望はお気軽にお問合せ下さい!
小学校まで徒歩2分、幼稚園まで徒歩5分のため子育て世代にもおすすめの立地です。
建物は地下1階と屋上付き3階建4DK!南側と北側が公道に面しているため採光・通風良好です。
ホームエレベーター付きなので各階への移動も楽々です。見学のご希望はお気軽にお問合せ下さい!
すべての画像
ご家族だんらんのスペースとなるリビング。家具の配置がしやすい広さを確保しています!
土地面積55.14m2(16.67坪)、延床面積106.06m2(32.08坪)、4DK
現況空家です! いつでもご内見可能ですよ。 是非1度ご見学下さい!
キッチンスペースは明るい空間に!使い手目線でポイントを押さえ、家事が楽しく進むキッチン。細部にまで施された上質なアイテムが快適な日常生活を叶えてくれます。お料理もしやすく、お子様の様子を見ながら家事も出来ます!
お手入れ簡単でキレイを保つ技術の数々が、家事の負担を減らしてくれます。暖かいお風呂でゆっくりと入浴し一日の疲れを癒す大切な空間をお過ごしください
ゆとりの洗面スペースで朝の身支度も快適スムーズに!
普段は人目につかないスペースにもこだわりを。 使用頻度の高い場所だからこそ便利な空間に。多人数での使用も考えた便利な空間です。
リビングダイニングスペースです。 ご家族の楽しい会話が聞こえてきますね!
担当スタッフより

- 吉田 翔
- ホームエレベーター付きの中古戸建です。新船橋駅徒歩圏で生活便良好!現況空家ですので、お気軽にご内見いただけます。お気軽にご連絡ください!
■南側8.9m公道
■ホームエレベーター付き
■南向きバルコニー
■アウトドアも楽しめる屋上付き
■便利な全居室収納
■地下倉庫あり
【現地見学受付中】現地だけでなく周辺環境のご案内もしております。
地域密着型の不動産アドバイザーにお任せ下さい。送迎サービスも行っておりますのでお気軽にお問合せ下さい。
物件詳細情報
物件No.31022161973
| 所在地 | 千葉県船橋市山手2丁目 | ||
|---|---|---|---|
| 交通 | 東武野田線「新船橋」駅徒歩12分 東武野田線「塚田」駅徒歩14分 |
||
| 間取 | 4DK + 倉庫+屋上 | ||
| 土地面積 | 55.14m² 公簿 | ||
| 建物面積 | 106.06m² 公簿 | ||
| 構造・規模 | 鉄骨造 3階建て 地下1階 | 築年月 | 1987年6月築 |
| バルコニー | 南向き | 国土法届出 | 不要 |
| 地目 | 宅地 | 用途地域 | 第一種住居地域 |
| 建ぺい率 | 60% | 容積率 | 200% |
| 都市計画 | 市街化区域 | 駐車スペース | なし |
| 現況 | 空家 | 引渡時期 | 即引渡可 |
| 権利種類 | 所有権 | 接道 | 南側8.9M公道に3.7M接道 北側1.9M公道に4.6M接道 |
| 小学校区 | 行田東小学校(157m) | 中学校区 | 行田中学校(851m) |
| 取引態様 | 媒介 | ||
| 設備 | 公営水道、本下水、都市ガス | ||
こだわり項目
南側道路南向き全室2面採光全居室収納屋上トイレ2ヶ所小学校800m以内保育園・幼稚園800m以内スーパー400m以内コンビニ400m以内公園800m以内陽当り良好
- ※価格は物件の代金総額を表示しており、消費税が課税される場合は税込み価格です。(1,000円未満は切り上げ。)
税率は引き渡し時期により異なりますので、各物件の詳細につきましてはお問い合わせください。 - ※敷地権利が借地権のものは価格に権利金を含みます。
- ※制作中に内容が変更される場合もありますので、あらかじめご了承ください。
- ※購入の前には物件内容や契約条件についてご自身で十分な確認をしていただくようにお願いいたします。
- ※完成予想図はいずれも外構、植栽、外観等実際のものとは多少異なることがあります。
- ※CG合成の画像の場合、実際とは多少異なる場合があります。
周辺地図
周辺施設一覧
- ショッピングセンター
- スーパー
- コンビニ
- ドラッグストア
- ホームセンター
- 飲食店
- その他店舗
- 商店街
- 大学
- 専門学校
- 高校・高専
- 中学校
- 小学校
- 保育園
- 幼稚園
- 公民館・児童館
- 病院
- 郵便局
- 役所
- 図書館
- 金融機関
- 警察・消防
- 趣味・娯楽施設
- 公園・運動施設
- 周辺の街並み
- 駅
- その他
お問い合せ先
- 株式会社慶和住宅
- お電話でのお問い合わせは
047-329-1800「ホームページを見た」とお問い合わせください - 千葉県市川市市川2-2-11 ドエル市川1F
- 営業時間:AM9:00~PM7:00
- 定休日:毎週水曜日
- 免許番号:千葉県知事免許(5)第14131号
- 市川市の不動産なら慶和住宅
- 中古住宅をエリアから探す
- 船橋市
- 山手
- 船橋市山手2丁目 中古戸建 エレベーター付4DK










