- 市川市の不動産なら慶和住宅
- 中古マンションをエリアから探す
- 松戸市
- 松戸新田
- ダイアパレス松戸みのり台ラ・グランディア
中古マンション
ダイアパレス松戸みのり台ラ・グランディア
情報更新日:2026/04/24 次回更新予定日:2026/05/08
所在地千葉県松戸市松戸新田[周辺地図]
交 通京成松戸線「みのり台」駅徒歩5分

【ご覧頂きありがとうございます!詳細は担当営業までお問合せ下さい!】
居住中に付きご見学の際はご予約が必要です。お気軽にご連絡下さい。
ご案内の際は物件だけでなく周辺環境もご案内致します。送迎サービスもございます!
・専用庭付き住戸
・南東×北東の角地
・全居室に開口部あり
・床下収納、ウォークインクローゼットなど収納豊富
居住中に付きご見学の際はご予約が必要です。お気軽にご連絡下さい。
ご案内の際は物件だけでなく周辺環境もご案内致します。送迎サービスもございます!
・専用庭付き住戸
・南東×北東の角地
・全居室に開口部あり
・床下収納、ウォークインクローゼットなど収納豊富
物件詳細情報
物件No.31021611360
| 所在地 | 千葉県松戸市松戸新田 | ||
|---|---|---|---|
| 交通 | 京成松戸線「みのり台」駅徒歩5分 | ||
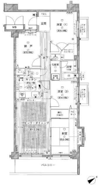
| 間取 | 3LDK + 納戸 | ||
| 専有面積 | 80.61m² (内法) | ||
| バルコニー面積 | 18.8m² 南西向き | ||
| 構造・規模 | 鉄筋コンクリート造 7階建て 1階部分 |
築年・入居 | 2008年12月築 |
| 現況 | 居住中 | 引渡時期 | 相談 |
| 権利種類 | 所有権 | 管理費 | 13,420円/月 |
| 修繕積立金 | 27,330円/月 | 管理形態 | 日勤 全部委託 |
| 管理会社 | 東急コミュニティー | 駐車場 | 敷地内にあり |
| 取引態様 | 媒介 | ||
- ※価格は物件の代金総額を表示しており、消費税が課税される場合は税込み価格です。(1,000円未満は切り上げ。)
税率は引き渡し時期により異なりますので、各物件の詳細につきましてはお問い合わせください。 - ※敷地権利が借地権のものは価格に権利金を含みます。
- ※制作中に内容が変更される場合もありますので、あらかじめご了承ください。
- ※購入の前には物件内容や契約条件についてご自身で十分な確認をしていただくようにお願いいたします。
- ※完成予想図はいずれも外構、植栽、外観等実際のものとは多少異なることがあります。
- ※CG合成の画像の場合、実際とは多少異なる場合があります。
周辺地図
周辺施設一覧
- ショッピングセンター
- スーパー
- コンビニ
- ドラッグストア
- ホームセンター
- 飲食店
- その他店舗
- 商店街
- 大学
- 専門学校
- 高校・高専
- 中学校
- 小学校
- 保育園
- 幼稚園
- 公民館・児童館
- 病院
- 郵便局
- 役所
- 図書館
- 金融機関
- 警察・消防
- 趣味・娯楽施設
- 公園・運動施設
- 周辺の街並み
- 駅
- その他
お問い合せ先
- 株式会社慶和住宅
- お電話でのお問い合わせは
047-329-1800「ホームページを見た」とお問い合わせください - 千葉県市川市市川2-2-11 ドエル市川1F
- 営業時間:AM9:00~PM7:00
- 定休日:毎週水曜日
- 免許番号:千葉県知事免許(5)第14131号
- 市川市の不動産なら慶和住宅
- 中古マンションをエリアから探す
- 松戸市
- 松戸新田
- ダイアパレス松戸みのり台ラ・グランディア









