- 市川市の不動産なら慶和住宅
- 新築一戸建てをエリアから探す
- 松戸市
- 松戸新田
- 松戸市松戸新田 新築戸建 全7棟
新築一戸建て
松戸市松戸新田 新築戸建 全7棟
情報更新日:2026/05/21 次回更新予定日:2026/06/04 取引条件有効期限:2026/06/04
所在地千葉県松戸市松戸新田[周辺地図]
交 通京成松戸線「松戸新田」駅徒歩4分





京成松戸線「松戸新田」駅徒歩4分。子育てファミリーに嬉しい、小学校まで徒歩10分、中学校まで徒歩13分。毎日の買い物に便利なスーパーも徒歩2分に。全7棟の新築戸建、ゆとりの4LDK。ファミリークローゼットやウォークインクローゼットなど、豊富な収納スペースも魅力です。建物は住宅性能表示制度の6項目で最も高い等級を取得した安心住宅(性能評価書付き)。快適な新生活をここから始めませんか。
・長期優良住宅
・フラット35S利用可能
・長期優良住宅
・フラット35S利用可能
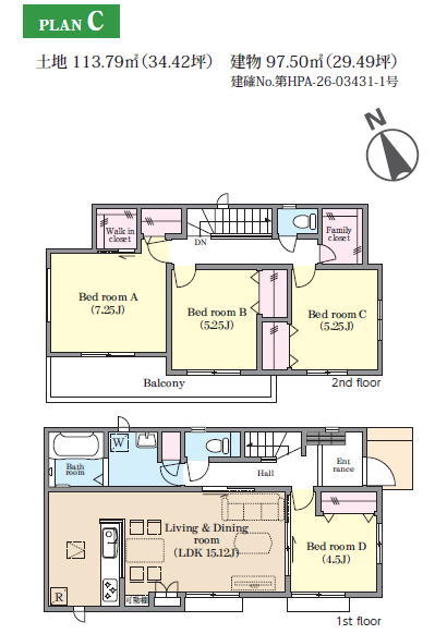
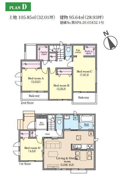
各棟情報
物件詳細情報
物件No.20000448186
| 所在地 | 千葉県松戸市松戸新田 | ||
|---|---|---|---|
| 交通 | 京成松戸線「松戸新田」駅徒歩4分 | ||
| 間取 | 4LDK~4LDK | ||
| 土地面積 | 104.16m² ~ 113.79m² 実測 | ||
| 建物面積 | 95.64m² ~ 97.5m² 実測 | ||
| 販売戸数 | 5戸 | 総戸数 | 全7戸 |
| 構造・規模 | 木造 2階建て | 築年・入居 | 2026年6月 |
| バルコニー | 南西向き | 建物現況 | 建築中 |
| 駐車スペース | あり(カースペース) | 引渡時期 | 相談 |
| 国土法届出 | 不要 | 地目 | 宅地 |
| 用途地域 | 第一種住居地域 | 建ぺい率 | 60% |
| 容積率 | 200% | 都市計画 | 市街化区域 |
| 権利種類 | 所有権 | 接道 | 北東側15M公道に接道 |
| 取引態様 | 媒介 | ||
| 設備 | 公営水道、本下水、都市ガス システムキッチン、システムバス、温水洗浄便座、シャワー付き洗面台、床下収納、テレビモニター付きインターホン、24時間換気システム、他 |
||
こだわり項目
LDK15帖以上長期優良住宅床下収納全居室収納システムキッチントイレ2ヶ所温水洗浄便座追焚機能オートバスウォークインクローゼットバリアフリー仕様TVモニタ付インターホン24時間換気システムフラット35・S適合証明書
- ※価格は物件の代金総額を表示しており、消費税が課税される場合は税込み価格です。(1,000円未満は切り上げ。)
税率は引き渡し時期により異なりますので、各物件の詳細につきましてはお問い合わせください。 - ※敷地権利が借地権のものは価格に権利金を含みます。
- ※制作中に内容が変更される場合もありますので、あらかじめご了承ください。
- ※購入の前には物件内容や契約条件についてご自身で十分な確認をしていただくようにお願いいたします。
- ※完成予想図はいずれも外構、植栽、外観等実際のものとは多少異なることがあります。
- ※CG合成の画像の場合、実際とは多少異なる場合があります。
周辺地図
周辺施設一覧
- ショッピングセンター
- スーパー
- コンビニ
- ドラッグストア
- ホームセンター
- 飲食店
- その他店舗
- 商店街
- 大学
- 専門学校
- 高校・高専
- 中学校
- 小学校
- 保育園
- 幼稚園
- 公民館・児童館
- 病院
- 郵便局
- 役所
- 図書館
- 金融機関
- 警察・消防
- 趣味・娯楽施設
- 公園・運動施設
- 周辺の街並み
- 駅
- その他
お問い合せ先
- 株式会社慶和住宅
- お電話でのお問い合わせは
047-329-1800「ホームページを見た」とお問い合わせください - 千葉県市川市市川2-2-11 ドエル市川1F
- 営業時間:AM9:00~PM7:00
- 定休日:毎週水曜日
- 免許番号:千葉県知事免許(5)第14131号
- 市川市の不動産なら慶和住宅
- 新築一戸建てをエリアから探す
- 松戸市
- 松戸新田
- 松戸市松戸新田 新築戸建 全7棟








