- 市川市の不動産なら慶和住宅
- 新築一戸建てをエリアから探す
- 船橋市
- 松が丘
- 船橋市松が丘4丁目 新築戸建 全2棟
新築一戸建て
船橋市松が丘4丁目 新築戸建 全2棟
情報更新日:2026/05/29 次回更新予定日:2026/06/12 取引条件有効期限:2026/06/12
所在地千葉県船橋市松が丘4丁目[周辺地図]
交 通東葉高速鉄道「北習志野」駅徒歩14分


東葉高速鉄道・京成松戸線「北習志野」駅徒歩14分の利便性と、ゆとりの4LDKを両立した新築戸建。
駐車スペースは2台分確保。食洗機、浴室乾燥機、宅配ボックスなど話題の設備が標準装備!
詳しい仕様や住宅設備の資料もご用意しておりますので、お気軽にご請求ください。
駐車スペースは2台分確保。食洗機、浴室乾燥機、宅配ボックスなど話題の設備が標準装備!
詳しい仕様や住宅設備の資料もご用意しておりますので、お気軽にご請求ください。
各棟情報
物件詳細情報
物件No.20000444274
| 所在地 | 千葉県船橋市松が丘4丁目 | ||
|---|---|---|---|
| 交通 | 東葉高速鉄道「北習志野」駅徒歩14分 京成松戸線「北習志野」駅徒歩14分 |
||
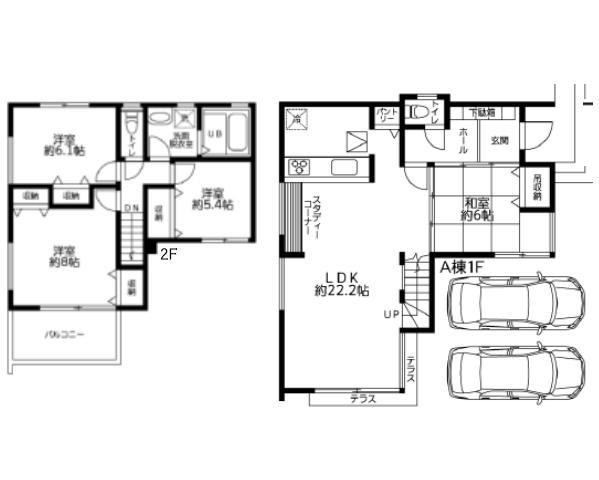
| 間取 | 4LDK~4LDK | ||
| 土地面積 | 109.34m² ~ 127.27m² | ||
| 建物面積 | 100.5m² ~ 115.09m² | ||
| 販売戸数 | 2戸 | 総戸数 | 全2戸 |
| 構造・規模 | 木造 2階建て | 築年・入居 | 2026年9月 |
| バルコニー | 南東向き | 建物現況 | 建築中 |
| 建築確認番号 | 千建住第252317号、他 | 駐車スペース | 2台(カースペース) |
| 引渡時期 | 相談 | 国土法届出 | 不要 |
| 地目 | 宅地 | 用途地域 | 第一種低層住居専用地域 |
| 建ぺい率 | 50% | 容積率 | 100% |
| 都市計画 | 市街化区域 | 権利種類 | 所有権 |
| 接道 | 北東側4.5M公道に接道 | 取引態様 | 媒介 |
| 設備 | 宅配ボックス、モニターホン、浴室乾燥機、ウォシュレット付トイレ、食器洗浄機、他 | ||
こだわり項目
LDK15帖以上床下収納全居室収納食器洗浄機システムキッチン3口以上コンロトイレ2ヶ所温水洗浄便座シャワー付洗面台浴室乾燥機追焚機能浴室に窓オートバスリビング階段バリアフリー仕様TVモニタ付インターホン24時間換気システム
- ※価格は物件の代金総額を表示しており、消費税が課税される場合は税込み価格です。(1,000円未満は切り上げ。)
税率は引き渡し時期により異なりますので、各物件の詳細につきましてはお問い合わせください。 - ※敷地権利が借地権のものは価格に権利金を含みます。
- ※制作中に内容が変更される場合もありますので、あらかじめご了承ください。
- ※購入の前には物件内容や契約条件についてご自身で十分な確認をしていただくようにお願いいたします。
- ※完成予想図はいずれも外構、植栽、外観等実際のものとは多少異なることがあります。
- ※CG合成の画像の場合、実際とは多少異なる場合があります。
周辺地図
周辺施設一覧
- ショッピングセンター
- スーパー
- コンビニ
- ドラッグストア
- ホームセンター
- 飲食店
- その他店舗
- 商店街
- 大学
- 専門学校
- 高校・高専
- 中学校
- 小学校
- 保育園
- 幼稚園
- 公民館・児童館
- 病院
- 郵便局
- 役所
- 図書館
- 金融機関
- 警察・消防
- 趣味・娯楽施設
- 公園・運動施設
- 周辺の街並み
- 駅
- その他
お問い合せ先
- 株式会社慶和住宅
- お電話でのお問い合わせは
047-329-1800「ホームページを見た」とお問い合わせください - 千葉県市川市市川2-2-11 ドエル市川1F
- 営業時間:AM9:00~PM7:00
- 定休日:毎週水曜日
- 免許番号:千葉県知事免許(5)第14131号
- 市川市の不動産なら慶和住宅
- 新築一戸建てをエリアから探す
- 船橋市
- 松が丘
- 船橋市松が丘4丁目 新築戸建 全2棟








