- 市川市の不動産なら慶和住宅
- 中古マンションをエリアから探す
- 市川市
- 妙典
- ルイシャトレ市川妙典

新規内装リフォーム物件!【ご案内随時受付中・資料請求のみも大歓迎】
東京メトロ東西線「妙典」駅から徒歩5分にある7階建てマンションの1階3LDKが出ました!
周辺は小学校、公園、保育園が近く子育て世代にもうれしい環境が整っています。また、駅前には大型ショッピングモールがあり映画やショッピングも楽しめますよ。
お部屋は下階が気にならない1階部分。南側に約27平米の専用庭が付いているお部屋なので、小さなお子さまのいらっしゃるご家庭におすすめ!室内は新規内装工事で綺麗に蘇ります。大切なペットと一緒に暮らせるマンションです。
■新耐震基準マンション
■77.61m2の3LDK
■南西角部屋・全居室採光あり
■ウォークインクローゼットなど豊富な収納スペース
■ガーデニングやお子さまと遊べる専用庭約27m2付き(使用料月額1220円)
東京メトロ東西線「妙典」駅から徒歩5分にある7階建てマンションの1階3LDKが出ました!
周辺は小学校、公園、保育園が近く子育て世代にもうれしい環境が整っています。また、駅前には大型ショッピングモールがあり映画やショッピングも楽しめますよ。
お部屋は下階が気にならない1階部分。南側に約27平米の専用庭が付いているお部屋なので、小さなお子さまのいらっしゃるご家庭におすすめ!室内は新規内装工事で綺麗に蘇ります。大切なペットと一緒に暮らせるマンションです。
■新耐震基準マンション
■77.61m2の3LDK
■南西角部屋・全居室採光あり
■ウォークインクローゼットなど豊富な収納スペース
■ガーデニングやお子さまと遊べる専用庭約27m2付き(使用料月額1220円)
物件詳細情報
物件No.31023267797
| 所在地 | 千葉県市川市妙典3丁目 | ||
|---|---|---|---|
| 交通 | 東京メトロ東西線「妙典」駅徒歩5分 | ||
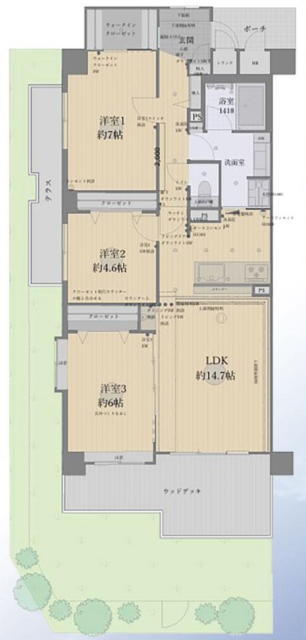
| 間取 | 3LDK + WIC (LDK14.7帖、洋室7帖、洋室4.6帖、洋室6帖) | ||
| 専有面積 | 77.61m² | ||
| バルコニー面積 | 10.38m² 南向き (専用庭面積27m2) | ||
| 総戸数 | 全32戸 | 構造・規模 | 鉄筋コンクリート造 7階建て 1階部分 |
| 築年・入居 | 1999年6月築 | 現況 | 空室 |
| 引渡時期 | 相談 | 権利種類 | 所有権 |
| 管理費 | 16,150円/月 | 修繕積立金 | 18,170円/月 |
| 管理形態 | 全部委託 | 管理会社 | 株式会社長谷工コミュニティ |
| 駐車場 | 敷地内に空なし 料金:7,500 ~ 9,500円/月 | ペット | 可 |
| 専用庭使用料 | 1,220円/月 | 取引態様 | 媒介 |
| リフォーム |
|
||
| 設備 | 公営水道、本下水、都市ガス | ||
こだわり項目
南向き角部屋専用庭付全居室収納ウッドデッキカウンターキッチンウォークインクローゼットエレベーター陽当り良好通風良好
- ※価格は物件の代金総額を表示しており、消費税が課税される場合は税込み価格です。(1,000円未満は切り上げ。)
税率は引き渡し時期により異なりますので、各物件の詳細につきましてはお問い合わせください。 - ※敷地権利が借地権のものは価格に権利金を含みます。
- ※制作中に内容が変更される場合もありますので、あらかじめご了承ください。
- ※購入の前には物件内容や契約条件についてご自身で十分な確認をしていただくようにお願いいたします。
- ※完成予想図はいずれも外構、植栽、外観等実際のものとは多少異なることがあります。
- ※CG合成の画像の場合、実際とは多少異なる場合があります。
周辺地図
周辺施設一覧
- ショッピングセンター
- スーパー
- コンビニ
- ドラッグストア
- ホームセンター
- 飲食店
- その他店舗
- 商店街
- 大学
- 専門学校
- 高校・高専
- 中学校
- 小学校
- 保育園
- 幼稚園
- 公民館・児童館
- 病院
- 郵便局
- 役所
- 図書館
- 金融機関
- 警察・消防
- 趣味・娯楽施設
- 公園・運動施設
- 周辺の街並み
- 駅
- その他
お問い合せ先
- 株式会社慶和住宅
- お電話でのお問い合わせは
047-329-1800「ホームページを見た」とお問い合わせください - 千葉県市川市市川2-2-11 ドエル市川1F
- 営業時間:AM9:00~PM7:00
- 定休日:毎週水曜日
- 免許番号:千葉県知事免許(5)第14131号








