- 市川市の不動産なら慶和住宅
- 中古マンションをエリアから探す
- 松戸市
- 五香
- ライネスハイム松戸五香

スーパーに隣接する8階建てマンションの1階部分3LDKが出ました!
南西向き角部屋につき日当たり良好です。
■新耐震基準マンション
■2020年5月リフォーム済(キッチン、浴室、トイレ、洗面所)
■二面バルコニー(南西・北西)
■車寄せスペース
■敷地内公園あり
■ペット飼育可(規約制限有)
南西向き角部屋につき日当たり良好です。
■新耐震基準マンション
■2020年5月リフォーム済(キッチン、浴室、トイレ、洗面所)
■二面バルコニー(南西・北西)
■車寄せスペース
■敷地内公園あり
■ペット飼育可(規約制限有)
物件詳細情報
物件No.31018914522
| 所在地 | 千葉県松戸市五香8丁目 | ||
|---|---|---|---|
| 交通 | 京成松戸線「五香」駅徒歩15分 京成松戸線「元山」駅徒歩16分 |
||
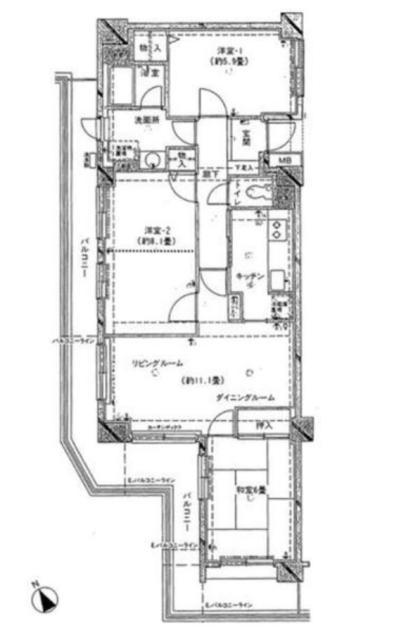
| 間取 | 3LDK (和室6帖、洋室8.1帖、洋室5.9帖、LDK11.1帖) | ||
| 専有面積 | 76.42m² (壁芯) | ||
| バルコニー面積 | 南西向き | ||
| 構造・規模 | 鉄筋コンクリート造 8階建て 1階部分 |
築年・入居 | 1986年12月築 |
| 現況 | 空室 | 引渡時期 | 即引渡可 |
| 権利種類 | 所有権 | 管理費 | 10,500円/月 |
| 修繕積立金 | 11,740円/月 | 管理形態 | 日勤 全部委託 |
| 管理会社 | 株式会社東急コミュニティー | ペット | 相談 |
| 取引態様 | 媒介 | ||
| 設備 | 都市ガス エレベーター、防犯カメラ、システムキッチン、オートバス、タンクレストイレ、温水洗浄便座、ダウンライト、モニター付きインターホン、他 |
||
こだわり項目
角部屋敷地内公園有全居室収納2面以上バルコニーシステムキッチン3口以上コンロ温水洗浄便座タンクレストイレオートバス室内洗濯機置き場TVモニタ付インターホン防犯カメラエレベーター陽当り良好
- ※価格は物件の代金総額を表示しており、消費税が課税される場合は税込み価格です。(1,000円未満は切り上げ。)
税率は引き渡し時期により異なりますので、各物件の詳細につきましてはお問い合わせください。 - ※敷地権利が借地権のものは価格に権利金を含みます。
- ※制作中に内容が変更される場合もありますので、あらかじめご了承ください。
- ※購入の前には物件内容や契約条件についてご自身で十分な確認をしていただくようにお願いいたします。
- ※完成予想図はいずれも外構、植栽、外観等実際のものとは多少異なることがあります。
- ※CG合成の画像の場合、実際とは多少異なる場合があります。
周辺地図
周辺施設一覧
- ショッピングセンター
- スーパー
- コンビニ
- ドラッグストア
- ホームセンター
- 飲食店
- その他店舗
- 商店街
- 大学
- 専門学校
- 高校・高専
- 中学校
- 小学校
- 保育園
- 幼稚園
- 公民館・児童館
- 病院
- 郵便局
- 役所
- 図書館
- 金融機関
- 警察・消防
- 趣味・娯楽施設
- 公園・運動施設
- 周辺の街並み
- 駅
- その他
お問い合せ先
- 株式会社慶和住宅
- お電話でのお問い合わせは
047-329-1800「ホームページを見た」とお問い合わせください - 千葉県市川市市川2-2-11 ドエル市川1F
- 営業時間:AM9:00~PM7:00
- 定休日:毎週水曜日
- 免許番号:千葉県知事免許(5)第14131号








