- 市川市の不動産なら慶和住宅
- 中古マンションをエリアから探す
- 船橋市
- 山手
- 船橋ダイヤハイツ4号棟





現況空き室【ご案内随時受付中、資料請求のみのお問合せ大歓迎】
東武野田線「新船橋」駅徒歩11分。総戸数42戸、3階建て低層マンション最上階部分2LDKのお部屋が出ました!
周辺はマンションが多い住宅街で駅前には大型ショッピングセンターイオンがある他、スーパー、コンビニ、ドラッグストア、ホームセンターなどの生活施設も徒歩圏に揃い日々の生活に大変便利な住環境。3路線3駅利用可能なので各方面へのアクセスも良好です!
建物の築年数は経っていますが敷地内は常に清潔に保たれており管理体制の良さが覗えます。
お部屋は最上階部分の2LDKで現況空き室になっていますのでいつでもご見学が可能です。ご自身のお好みに合わせてリフォームされてお住まいになられるのはもちろん収益物件としてご利用されるのもOK。是非御気軽にお問合せ下さい。
■現況空き室
■駐車場1区画専用使用権付き
■南向きで陽当り良好
■主要な生活施設が徒歩10分以内
東武野田線「新船橋」駅徒歩11分。総戸数42戸、3階建て低層マンション最上階部分2LDKのお部屋が出ました!
周辺はマンションが多い住宅街で駅前には大型ショッピングセンターイオンがある他、スーパー、コンビニ、ドラッグストア、ホームセンターなどの生活施設も徒歩圏に揃い日々の生活に大変便利な住環境。3路線3駅利用可能なので各方面へのアクセスも良好です!
建物の築年数は経っていますが敷地内は常に清潔に保たれており管理体制の良さが覗えます。
お部屋は最上階部分の2LDKで現況空き室になっていますのでいつでもご見学が可能です。ご自身のお好みに合わせてリフォームされてお住まいになられるのはもちろん収益物件としてご利用されるのもOK。是非御気軽にお問合せ下さい。
■現況空き室
■駐車場1区画専用使用権付き
■南向きで陽当り良好
■主要な生活施設が徒歩10分以内
物件詳細情報
物件No.20000305728
| 所在地 | 千葉県船橋市山手2丁目 | ||
|---|---|---|---|
| 交通 | 東武野田線「新船橋」駅徒歩12分 京成本線「海神」駅徒歩14分 東葉高速鉄道「東海神」駅徒歩22分 |
||
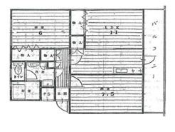
| 間取 | 2LDK + WIC (LDK11.0帖、洋室7.5帖、洋室6.0帖) | ||
| 専有面積 | 55.94m² (壁芯) | ||
| バルコニー面積 | 9.4m² 南向き | ||
| 総戸数 | 全42戸 | 構造・規模 | 鉄骨鉄筋コンクリート造 3階建て 3階部分 |
| 築年・入居 | 1978年2月築 | 施工会社 | 東急プレハブ(株) |
| 現況 | 空室 | 引渡時期 | 即引渡可 |
| 権利種類 | 所有権 | 管理費 | 6,700円/月 |
| 修繕積立金 | 9,000円/月 | 管理形態 | 巡回 一部委託 |
| 管理会社 | メルコエステートサービス(株) | 駐車場 | 敷地内にあり 料金:5,000円/月 |
| ペット | 不可 | 小学校区 | 行田東小学校(374m) |
| 中学校区 | 行田中学校(1000m) | 取引態様 | 媒介 |
| 設備 | 公営水道、本下水、都市ガス ガスコンロ、追焚機能付きユニットバス、シャワー付洗面化粧台、室内洗濯機置場、温水洗浄便座、ほか |
||
こだわり項目
南向き最上階ガスコンロ3口以上コンロ温水洗浄便座シャワー付洗面台室内洗濯機置き場全居室フローリング小学校800m以内保育園・幼稚園800m以内スーパー400m以内コンビニ400m以内公園800m以内
- ※価格は物件の代金総額を表示しており、消費税が課税される場合は税込み価格です。(1,000円未満は切り上げ。)
税率は引き渡し時期により異なりますので、各物件の詳細につきましてはお問い合わせください。 - ※敷地権利が借地権のものは価格に権利金を含みます。
- ※制作中に内容が変更される場合もありますので、あらかじめご了承ください。
- ※購入の前には物件内容や契約条件についてご自身で十分な確認をしていただくようにお願いいたします。
- ※完成予想図はいずれも外構、植栽、外観等実際のものとは多少異なることがあります。
- ※CG合成の画像の場合、実際とは多少異なる場合があります。
周辺地図
周辺施設一覧
- ショッピングセンター
- スーパー
- コンビニ
- ドラッグストア
- ホームセンター
- 飲食店
- その他店舗
- 商店街
- 大学
- 専門学校
- 高校・高専
- 中学校
- 小学校
- 保育園
- 幼稚園
- 公民館・児童館
- 病院
- 郵便局
- 役所
- 図書館
- 金融機関
- 警察・消防
- 趣味・娯楽施設
- 公園・運動施設
- 周辺の街並み
- 駅
- その他
お問い合せ先
- 株式会社慶和住宅
- お電話でのお問い合わせは
047-329-1800「ホームページを見た」とお問い合わせください - 千葉県市川市市川2-2-11 ドエル市川1F
- 営業時間:AM9:00~PM7:00
- 定休日:毎週水曜日
- 免許番号:千葉県知事免許(5)第14131号










