利便性重視の方におすすめ【ご案内随時受付中・資料請求のみのお問合せも大歓迎】
JR総武線「市川」駅徒歩5分。利便性良好な住宅街に平成18年9月築のログハウスです!
JR総武快速線「市川」駅は東京、品川、横浜方面へダイレクト!また、成田空港へはJR・京成線の2路線でアクセス可能、羽田空港へは市川駅から直通バスが利用可能で旅行や出張など空港へのアクセスも便利です。外環道路「市川中央IC」まで約1400mとお車での移動も快適です!
駅前にはスーパーやコンビニなどの商業施設や飲食店が充実しており生活利便性が高い暮らしやすい住環境です。
建物内外装ともに大変丁寧にお使いになられています。是非お気軽にお問合せ下さい。
~物件のおすすめポイント~
■約6帖の広々ウッドデッキ付き
■断熱性の高いフィンランドパインのログハウス
■約7帖の広々ロフトあり
■大きな吹抜け+トップライトで陽当りサンサン
■インナーガレージ付き
■IHクッキングヒーター
■防犯性の高い玄関囲いは自転車置場に最適
■2021年 外壁(一部)塗装済み
- 5,580万円
- 交 通総武線「市川」駅 徒歩5分
- 所在地市川市市川南1丁目
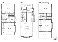
- 土地面積98.14m²
- 建物面積50.13m²
- 間 取1DK