太陽光パネル付きのZEH住宅!【ご案内随時受付中・資料請求のみも大歓迎】
JR京葉線「新浦安」駅徒歩15分。低層住宅が建ち並ぶ閑静な住宅街に2棟の新築戸建が出ました!
スーパー、コンビニ、ドラッグストア、郵便局等の生活施設が徒歩圏内にあり日々の生活にも便利。小学校やこども園も徒歩10分圏内なので子育て世代のご家族様にもおすすめです。
建物は太陽光パネル付きのオール電化住宅!ビルトイン食洗機や浴室乾燥機など快適な暮らしをサポートする人気の設備を標準装備。詳しい仕様や住宅設備の資料もご用意しておりますので、お気軽にご請求ください。
■実物が内覧できる完成物件
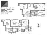
■リビング上部には吹抜けを採用した開放的な空間
■玄関脇に洗面カウンター設置
■ファミリークローク設置
■南東側公道に接道
■閑静な住宅地
■2路線2駅利用可能
- 6,980万円~6,980万円

- 交 通東京メトロ東西線「浦安」駅 徒歩27分~27分
- 所在地浦安市海楽1丁目
- 土地面積91.18m²~113.37m²
- 建物面積102.46m²~107.44m²
- 間 取2SLDK~2SLDK