- 市川市の不動産なら慶和住宅
- 中古マンションをエリアから探す
- 松戸市
- 松戸
- 松戸東光マンション

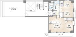
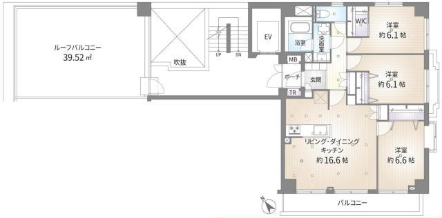
JR常磐線・京成松戸線「松戸」駅徒歩6分!都心へ出やすく、買物便利な立地にある7階建マンション6階部分3LDK。
約39平米のルーフバルコニー付き、三方角部屋(南西×南東×北東)につき日当たり・眺望良好です。
2026年2月新規内装リノベーション済みですので、すぐに新生活をスタート出来ます!
・新耐震基準
・専有面積79.86m2、3LDK
・ウォークインクローゼットやトランクルームなど収納スペース充実
・水まわり設備一新
・最長2年間アフター保証付(専有部内・給排水管など)
・ペット飼育相談(細則有、犬・猫2匹までOK)
・修繕履歴あり(抜粋)
2024年EVリニューアル工事
2021年インターホン更新工事
約39平米のルーフバルコニー付き、三方角部屋(南西×南東×北東)につき日当たり・眺望良好です。
2026年2月新規内装リノベーション済みですので、すぐに新生活をスタート出来ます!
・新耐震基準
・専有面積79.86m2、3LDK
・ウォークインクローゼットやトランクルームなど収納スペース充実
・水まわり設備一新
・最長2年間アフター保証付(専有部内・給排水管など)
・ペット飼育相談(細則有、犬・猫2匹までOK)
・修繕履歴あり(抜粋)
2024年EVリニューアル工事
2021年インターホン更新工事
物件詳細情報
物件No.31023185645
| 所在地 | 千葉県松戸市松戸 | ||
|---|---|---|---|
| 交通 | 常磐線「松戸」駅徒歩6分 京成松戸線「松戸」駅徒歩6分 |
||
| 間取 | 3LDK + WIC+ルーフバルコニー (LDK16.6帖、洋室6.1帖、洋室6.1帖、洋室6.6帖) | ||
| 専有面積 | 79.72m² (壁芯) | ||
| バルコニー面積 | 8.42m² 南西向き (ルーフバルコニー面積39.52m2) | ||
| 総戸数 | 全15戸 | 構造・規模 | 鉄筋コンクリート造 7階建て 6階部分 |
| 築年・入居 | 1996年12月築 | 施工会社 | (株)フジタ |
| 現況 | 空室 | 引渡時期 | 相談 |
| 権利種類 | 所有権 | 管理費 | 23,100円/月 |
| 修繕積立金 | 33,000円/月 | 管理形態 | 巡回 全部委託 |
| 管理会社 | (株)東京建物アメニティサポート | 駐車場 | なし |
| ペット | 相談 | 取引態様 | 媒介 |
| リフォーム |
|
||
| 設備 | 公営水道、都市ガス オートロック、宅配ボックス、エレベーター、システムキッチン、食器洗浄乾燥機、浄水器、追い焚き機能付ユニットバス、浴室換気乾燥暖房機、温水洗浄便座、ウォークインクローゼット、ルーフバルコニー、他 |
||
こだわり項目
LDK15帖以上ルーフバルコニー角部屋全居室収納2面以上バルコニーリノベーション食器洗浄機浄水器システムキッチン3口以上コンロ温水洗浄便座浴室乾燥機浴室暖房追焚機能トランクルームウォークインクローゼットTVモニタ付インターホンオートロック24時間宅配ボックスエレベーター陽当り良好通風良好眺望良好
- ※価格は物件の代金総額を表示しており、消費税が課税される場合は税込み価格です。(1,000円未満は切り上げ。)
税率は引き渡し時期により異なりますので、各物件の詳細につきましてはお問い合わせください。 - ※敷地権利が借地権のものは価格に権利金を含みます。
- ※制作中に内容が変更される場合もありますので、あらかじめご了承ください。
- ※購入の前には物件内容や契約条件についてご自身で十分な確認をしていただくようにお願いいたします。
- ※完成予想図はいずれも外構、植栽、外観等実際のものとは多少異なることがあります。
- ※CG合成の画像の場合、実際とは多少異なる場合があります。
周辺地図
周辺施設一覧
- ショッピングセンター
- スーパー
- コンビニ
- ドラッグストア
- ホームセンター
- 飲食店
- その他店舗
- 商店街
- 大学
- 専門学校
- 高校・高専
- 中学校
- 小学校
- 保育園
- 幼稚園
- 公民館・児童館
- 病院
- 郵便局
- 役所
- 図書館
- 金融機関
- 警察・消防
- 趣味・娯楽施設
- 公園・運動施設
- 周辺の街並み
- 駅
- その他
お問い合せ先
- 株式会社慶和住宅
- お電話でのお問い合わせは
047-329-1800「ホームページを見た」とお問い合わせください - 千葉県市川市市川2-2-11 ドエル市川1F
- 営業時間:AM9:00~PM7:00
- 定休日:毎週水曜日
- 免許番号:千葉県知事免許(5)第14131号








