- 市川市の不動産なら慶和住宅
- 中古住宅をエリアから探す
- 船橋市
- 前貝塚町
- 船橋市前貝塚町 中古戸建 駅4分の角地!





通勤ラクラク!東武野田線「塚田」駅まで徒歩4分。
閑静な住宅街の角地で陽当たり良好!
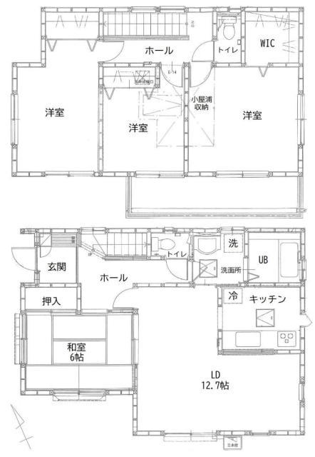
ウォークインクローゼットと小屋裏収納を備えた4LDKの間取りです。
徒歩圏内にスーパー、コンビニ、小学校など生活利便施設が充実!
自住用としてお好みに合わせたリフォームをされるのも良いですし、そのまま収益物件としても活用できますよ。
閑静な住宅街の角地で陽当たり良好!
ウォークインクローゼットと小屋裏収納を備えた4LDKの間取りです。
徒歩圏内にスーパー、コンビニ、小学校など生活利便施設が充実!
自住用としてお好みに合わせたリフォームをされるのも良いですし、そのまま収益物件としても活用できますよ。
担当スタッフより

- 辻 秀明
- 2004年築の旧分譲住宅です。現況賃貸中ですが空家渡しですので、ご自身でお住まいいただけます。現地だけでなく周辺環境のご案内もしております。送迎サービスも行っておりますのでお気軽にお問合せ下さい。
・1階庭ウッドデッキ
・2025年2月 給湯器新規交換
・全居室南西向き4LDK
・小屋裏収納とウォークインクロゼットで満足の収納力
・駐車スペースあり(1台)
物件詳細情報
物件No.31023004403
| 所在地 | 千葉県船橋市前貝塚町 | ||
|---|---|---|---|
| 交通 | 東武野田線「塚田」駅徒歩4分 | ||
| 間取 | 4LDK + WIC+小屋裏収納 | ||
| 土地面積 | 110m² | ||
| 建物面積 | 104.33m² | ||
| 構造・規模 | 木造 2階建て | 築年月 | 2004年9月築 |
| バルコニー | 南西向き | 国土法届出 | 不要 |
| 地目 | 宅地 | 用途地域 | 第一種住居地域 |
| 建ぺい率 | 60% | 容積率 | 200% |
| 都市計画 | 市街化区域 | 駐車スペース | 1台(カースペース) |
| 現況 | 賃貸中 | 引渡時期 | 相談 ※空家渡し |
| 権利種類 | 所有権 | 接道 | 北西側4.84M道路に接道 北東側5.87M道路に接道 |
| 小学校区 | 塚田小学校(620m) | 中学校区 | 旭中学校(2000m) |
| 取引態様 | 媒介 | ||
| 設備 | 公営水道、本下水、都市ガス | ||
| 備考・制限等 | ※契約不適合責任免責 | ||
こだわり項目
角地閑静な住宅地全室南向き庭床下収納全居室収納小屋裏収納ウッドデッキウォークインクローゼットTVモニタ付インターホン小学校800m以内
- ※価格は物件の代金総額を表示しており、消費税が課税される場合は税込み価格です。(1,000円未満は切り上げ。)
税率は引き渡し時期により異なりますので、各物件の詳細につきましてはお問い合わせください。 - ※敷地権利が借地権のものは価格に権利金を含みます。
- ※制作中に内容が変更される場合もありますので、あらかじめご了承ください。
- ※購入の前には物件内容や契約条件についてご自身で十分な確認をしていただくようにお願いいたします。
- ※完成予想図はいずれも外構、植栽、外観等実際のものとは多少異なることがあります。
- ※CG合成の画像の場合、実際とは多少異なる場合があります。
周辺地図
周辺施設一覧
- ショッピングセンター
- スーパー
- コンビニ
- ドラッグストア
- ホームセンター
- 飲食店
- その他店舗
- 商店街
- 大学
- 専門学校
- 高校・高専
- 中学校
- 小学校
- 保育園
- 幼稚園
- 公民館・児童館
- 病院
- 郵便局
- 役所
- 図書館
- 金融機関
- 警察・消防
- 趣味・娯楽施設
- 公園・運動施設
- 周辺の街並み
- 駅
- その他
お問い合せ先
- 株式会社慶和住宅
- お電話でのお問い合わせは
047-329-1800「ホームページを見た」とお問い合わせください - 千葉県市川市市川2-2-11 ドエル市川1F
- 営業時間:AM9:00~PM7:00
- 定休日:毎週水曜日
- 免許番号:千葉県知事免許(5)第14131号
- 市川市の不動産なら慶和住宅
- 中古住宅をエリアから探す
- 船橋市
- 前貝塚町
- 船橋市前貝塚町 中古戸建 駅4分の角地!










