- 市川市の不動産なら慶和住宅
- 新築一戸建てをエリアから探す
- 船橋市
- 芝山
- 船橋市芝山6丁目 新築戸建 屋上のある家
新築一戸建て
船橋市芝山6丁目 新築戸建 屋上のある家
情報更新日:2026/01/11 次回更新予定日:2026/01/25
所在地千葉県船橋市芝山6丁目[周辺地図]
交 通京成松戸線「高根木戸」駅徒歩12分


【ご覧頂きありがとうございます!詳細は担当営業までお問合せ下さい!】
物件詳細情報
物件No.31020394894
| 所在地 | 千葉県船橋市芝山6丁目 | ||
|---|---|---|---|
| 交通 | 京成松戸線「高根木戸」駅徒歩12分 東葉高速鉄道「北習志野」駅徒歩20分 |
||
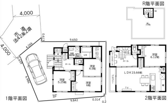
| 間取 | 4LDK + WIC (LDK15.66帖、洋室6.12帖、洋室4.5帖、洋室6.0帖、洋室5.25帖) | ||
| 土地面積 | 100.86m² 実測 | ||
| 建物面積 | 99.94m² 実測 | ||
| 販売戸数 | 1戸 | 総戸数 | 全1戸 |
| 構造・規模 | 木造 2階建て | 築年・入居 | 2025年12月 |
| 建物現況 | 建築中 | 建築確認番号 | 第24UDI1C建07481号 |
| 駐車スペース | 1台(カースペース) | 引渡時期 | 相談 |
| 国土法届出 | 不要 | 地目 | 宅地 |
| 用途地域 | 第一種低層住居専用地域 | 建ぺい率 | 50% |
| 容積率 | 100% | 都市計画 | 市街化区域 |
| 権利種類 | 所有権 | 接道 | 西側4M道路に接道 |
| 取引態様 | 媒介 | ||
| 設備 | 宅配ボックス、モニターホン、浴室乾燥機、ウォシュレット、食器洗浄乾燥機、他 | ||
こだわり項目
閑静な住宅地LDK15帖以上全居室収納屋上間取り変更可能食器洗浄機システムキッチントイレ2ヶ所温水洗浄便座浴室乾燥機追焚機能オートバス全居室フローリングリビング階段ウォークインクローゼットバリアフリー仕様TVモニタ付インターホン24時間換気システム
- ※価格は物件の代金総額を表示しており、消費税が課税される場合は税込み価格です。(1,000円未満は切り上げ。)
税率は引き渡し時期により異なりますので、各物件の詳細につきましてはお問い合わせください。 - ※敷地権利が借地権のものは価格に権利金を含みます。
- ※制作中に内容が変更される場合もありますので、あらかじめご了承ください。
- ※購入の前には物件内容や契約条件についてご自身で十分な確認をしていただくようにお願いいたします。
- ※完成予想図はいずれも外構、植栽、外観等実際のものとは多少異なることがあります。
- ※CG合成の画像の場合、実際とは多少異なる場合があります。
周辺地図
周辺施設一覧
- ショッピングセンター
- スーパー
- コンビニ
- ドラッグストア
- ホームセンター
- 飲食店
- その他店舗
- 商店街
- 大学
- 専門学校
- 高校・高専
- 中学校
- 小学校
- 保育園
- 幼稚園
- 公民館・児童館
- 病院
- 郵便局
- 役所
- 図書館
- 金融機関
- 警察・消防
- 趣味・娯楽施設
- 公園・運動施設
- 周辺の街並み
- 駅
- その他
お問い合せ先
- 株式会社慶和住宅
- お電話でのお問い合わせは
047-329-1800「ホームページを見た」とお問い合わせください - 千葉県市川市市川2-2-11 ドエル市川1F
- 営業時間:AM9:00~PM7:00
- 定休日:毎週水曜日
- 免許番号:千葉県知事免許(5)第14131号
- 市川市の不動産なら慶和住宅
- 新築一戸建てをエリアから探す
- 船橋市
- 芝山
- 船橋市芝山6丁目 新築戸建 屋上のある家








