- 市川市の不動産なら慶和住宅
- 中古住宅をエリアから探す
- 船橋市
- 松が丘
- 船橋市松が丘4丁目 中古戸建 南西側公道につき日当たり良好
中古住宅
船橋市松が丘4丁目 中古戸建 南西側公道につき日当たり良好
情報更新日:2025/11/08 次回更新予定日:2025/11/22
所在地千葉県船橋市松が丘4丁目[周辺地図]
交 通東葉高速鉄道「北習志野」駅徒歩17分

現況空家に付きいつでもご見学可能です。
物件だけでなく周辺環境も合わせてご案内致しますのでお気軽にお問い合わせ下さい。
自住用としてお好みに合わせたリフォームをされるのも良いですし、そのまま収益物件としても活用できますよ。
◆平成7年築・3LDK
◆室内丁寧に使われております
◆電動ゲート付カースペース
物件だけでなく周辺環境も合わせてご案内致しますのでお気軽にお問い合わせ下さい。
自住用としてお好みに合わせたリフォームをされるのも良いですし、そのまま収益物件としても活用できますよ。
◆平成7年築・3LDK
◆室内丁寧に使われております
◆電動ゲート付カースペース
物件詳細情報
物件No.31020237385
| 所在地 | 千葉県船橋市松が丘4丁目 | ||
|---|---|---|---|
| 交通 | 東葉高速鉄道「北習志野」駅徒歩17分 京成松戸線「北習志野」駅徒歩17分 |
||
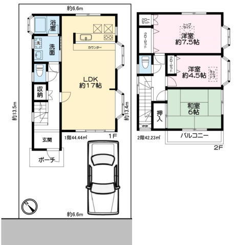
| 間取 | 3LDK (LDK17帖、洋室7.5帖、洋室4.5帖、和室6帖) | ||
| 土地面積 | 89.09m² 公簿 | ||
| 建物面積 | 86.67m² 公簿 | ||
| 構造・規模 | 木造 2階建て | 築年月 | 1995年5月築 |
| バルコニー | 南西向き | 国土法届出 | 不要 |
| 地目 | 宅地 | 用途地域 | 第一種低層住居専用地域 |
| 建ぺい率 | 50% | 容積率 | 100% |
| 都市計画 | 市街化区域 | 駐車スペース | 1台(カースペース) |
| 現況 | 空家 | 引渡時期 | 即引渡可 |
| 引渡条件 | 現況渡し | 権利種類 | 所有権 |
| 接道 | 南西側5M公道に6.6M接道 | 取引態様 | 媒介 |
| 設備 | 公営水道、本下水 都市ガス,電気,上水道,下水道,システムキッチン,トイレ2箇所,洗面所,洗面台,洗濯機置場,フローリング,2沿線以上利用可 |
||
| 備考・制限等 | ※現況有姿引渡し ※駐車可能な車両サイズは現地カースペースをご確認下さい ※本物件の排水管は隣接地を経由して公共下水道に接続されているため隣地所有者との間で覚書を締結予定です。 |
||
こだわり項目
平坦地LDK15帖以上システムキッチン
- ※価格は物件の代金総額を表示しており、消費税が課税される場合は税込み価格です。(1,000円未満は切り上げ。)
税率は引き渡し時期により異なりますので、各物件の詳細につきましてはお問い合わせください。 - ※敷地権利が借地権のものは価格に権利金を含みます。
- ※制作中に内容が変更される場合もありますので、あらかじめご了承ください。
- ※購入の前には物件内容や契約条件についてご自身で十分な確認をしていただくようにお願いいたします。
- ※完成予想図はいずれも外構、植栽、外観等実際のものとは多少異なることがあります。
- ※CG合成の画像の場合、実際とは多少異なる場合があります。
周辺地図
周辺施設一覧
- ショッピングセンター
- スーパー
- コンビニ
- ドラッグストア
- ホームセンター
- 飲食店
- その他店舗
- 商店街
- 大学
- 専門学校
- 高校・高専
- 中学校
- 小学校
- 保育園
- 幼稚園
- 公民館・児童館
- 病院
- 郵便局
- 役所
- 図書館
- 金融機関
- 警察・消防
- 趣味・娯楽施設
- 公園・運動施設
- 周辺の街並み
- 駅
- その他
お問い合せ先
- 株式会社慶和住宅
- お電話でのお問い合わせは
047-329-1800「ホームページを見た」とお問い合わせください - 千葉県市川市市川2-2-11 ドエル市川1F
- 営業時間:AM9:00~PM7:00
- 定休日:毎週水曜日
- 免許番号:千葉県知事免許(5)第14131号
- 市川市の不動産なら慶和住宅
- 中古住宅をエリアから探す
- 船橋市
- 松が丘
- 船橋市松が丘4丁目 中古戸建 南西側公道につき日当たり良好







