- 市川市の不動産なら慶和住宅
- 中古住宅をエリアから探す
- 市川市
- 本北方
- 市川市本北方2丁目 中古戸建 リフォーム物件!
中古住宅
市川市本北方2丁目 中古戸建 リフォーム物件!
情報更新日:2026/01/23 次回更新予定日:2026/01/29
所在地千葉県市川市本北方2丁目[周辺地図]
交 通総武線「本八幡」駅バス20分 停歩5分





新規リフォーム物件!【ご案内随時受付中・資料請求のみのお問合せも大歓迎】
JR総武線「本八幡」駅バス20分、停歩5分のアクセス便利な立地に2000年6月築の3LDK中古戸建が出ました。
スーパー、コンビニ、郵便局等の生活施設が徒歩6分以内で日常生活に便利な住環境!小学校は徒歩2分の近さで安心ですね。
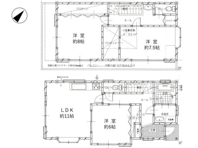
物件は全居室6帖以上のゆとり3LDK!各居室クローゼット、小屋裏収納付きで収納スペースもたっぷりあります。
新規リフォーム物件ですので、お引渡し後すぐに新生活をスタート出来ます!
JR総武線「本八幡」駅バス20分、停歩5分のアクセス便利な立地に2000年6月築の3LDK中古戸建が出ました。
スーパー、コンビニ、郵便局等の生活施設が徒歩6分以内で日常生活に便利な住環境!小学校は徒歩2分の近さで安心ですね。
物件は全居室6帖以上のゆとり3LDK!各居室クローゼット、小屋裏収納付きで収納スペースもたっぷりあります。
新規リフォーム物件ですので、お引渡し後すぐに新生活をスタート出来ます!
担当スタッフより

- 根本 和美
- 新規リフォームで、キッチン・浴室・洗面台も新規交換しますので、気持ちよくお住まいになれます。JR総武線やJR武蔵野線、京成本線が利用でき、多彩なアプローチで通勤や通学に便利な立地です。
・全室南東向き採光
・約3帖の小屋裏収納付き
・全居室6帖以上
・閑静な住宅街
・映画館付設のショッピングモールまで自転車約11分
・生活環境良好
ーーー
現地見学受付中。
資料請求からご案内まで、お気軽にお問合せください。
物件詳細情報
物件No.20000435556
| 所在地 | 千葉県市川市本北方2丁目 | ||
|---|---|---|---|
| 交通 | 総武線「本八幡」駅バス20分 バス停「JA市川市本店」停歩5分 京成本線「鬼越」駅徒歩23分 武蔵野線「船橋法典」駅徒歩29分 |
||
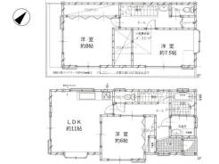
| 間取 | 3LDK + 小屋裏収納 (LDK11帖、洋室6帖、洋室8帖、洋室7.5帖) | ||
| 土地面積 | 100.38m² 公簿 | ||
| 建物面積 | 91.43m² 公簿 | ||
| 構造・規模 | 木造 2階建て | 築年月 | 2000年6月築 |
| 国土法届出 | 不要 | 地目 | 宅地 |
| 用途地域 | 第一種低層住居専用地域 | 建ぺい率 | 50% |
| 容積率 | 100% | 都市計画 | 市街化区域 |
| 駐車スペース | なし | 現況 | 空家 |
| 引渡時期 | 期日指定有(2026年2月中旬) ※リフォーム後のお引渡し |
権利種類 | 所有権 |
| 接道 | 北東側6M公道に接道 | 小学校区 | 北方小学校(122m) |
| 中学校区 | 下貝塚中学校(1200m) | 取引態様 | 媒介 |
| リフォーム |
|
||
こだわり項目
全室南向き全居室収納小屋裏収納小学校800m以内コンビニ400m以内公園800m以内
- ※価格は物件の代金総額を表示しており、消費税が課税される場合は税込み価格です。(1,000円未満は切り上げ。)
税率は引き渡し時期により異なりますので、各物件の詳細につきましてはお問い合わせください。 - ※敷地権利が借地権のものは価格に権利金を含みます。
- ※制作中に内容が変更される場合もありますので、あらかじめご了承ください。
- ※購入の前には物件内容や契約条件についてご自身で十分な確認をしていただくようにお願いいたします。
- ※完成予想図はいずれも外構、植栽、外観等実際のものとは多少異なることがあります。
- ※CG合成の画像の場合、実際とは多少異なる場合があります。
周辺地図
周辺施設一覧
- ショッピングセンター
- スーパー
- コンビニ
- ドラッグストア
- ホームセンター
- 飲食店
- その他店舗
- 商店街
- 大学
- 専門学校
- 高校・高専
- 中学校
- 小学校
- 保育園
- 幼稚園
- 公民館・児童館
- 病院
- 郵便局
- 役所
- 図書館
- 金融機関
- 警察・消防
- 趣味・娯楽施設
- 公園・運動施設
- 周辺の街並み
- 駅
- その他
お問い合せ先
- 株式会社慶和住宅
- お電話でのお問い合わせは
047-329-1800「ホームページを見た」とお問い合わせください - 千葉県市川市市川2-2-11 ドエル市川1F
- 営業時間:AM9:00~PM7:00
- 定休日:毎週水曜日
- 免許番号:千葉県知事免許(5)第14131号
- 市川市の不動産なら慶和住宅
- 中古住宅をエリアから探す
- 市川市
- 本北方
- 市川市本北方2丁目 中古戸建 リフォーム物件!










