- 市川市の不動産なら慶和住宅
- 新築一戸建てをエリアから探す
- 船橋市
- 東船橋
- 1号棟 船橋市東船橋7丁目 新築 全3棟
1号棟 船橋市東船橋7丁目 新築 全3棟
情報更新日:2025/11/08 次回更新予定日:2025/11/22
所在地千葉県船橋市東船橋7丁目15[周辺地図]
交 通総武線「東船橋」駅徒歩15分





小・中学校、幼稚園などの教育施設が徒歩圏に揃う子育て世代のお客様にもおすすめの立地。
JR総武線「東船橋」駅も利用可能で、通勤・通学のアクセスも便利です。
3棟とも南北両面道路に面しているため陽当たり・通風良好!
リビング床暖房や2台分の駐車スペースなど快適な暮らしをサポートする設備・仕様も充実!
詳しい資料もご用意しておりますので、お気軽にご請求ください。
すべての画像
【1号棟】ご家族だんらんのスペースとなるリビング。家具の配置がしやすい広さを確保しています!
全居室二面採光4LDK!
前面道路です。
【1号棟】広~いお庭も付いてます! 夢の庭付き一戸建て住宅を実現させてください!
【1号棟】キッチンと統一感のある家具など設置し、お洒落な空間に!
【1号棟】システムキッチンには物が取り出しやすく、開閉もスムーズな、スライド式収納を採用しました。
【1号棟】お手入れ簡単でキレイを保つ技術の数々が、家事の負担を減らしてくれます。暖かいお風呂でゆっくりと入浴し一日の疲れを癒す大切な空間をお過ごしください
【1号棟】朝の身支度に便利なシャンプードレッサーはとっても便利です!シンク下の収納でアメニティ類のストックもバッチリ!
【1号棟】広々としたバルコニーがあり、たくさんの洗濯物を干すことができます!日当たりが良く暖かいですよ~!
【1号棟】大型の下駄箱収納でお気に入りの靴もたっぷり収納できますね!
【1号棟】ご家族だんらんのスペースとなるダイニング。家具の配置がしやすい広さを確保しています!
【1号棟】洋室は明るい空間となっています!子供部屋にも良さそうですね!
【1号棟】書斎や趣味を楽しむお部屋としてもお使いいただけます!
【1号棟】寝室は明るい空間となっています!子供部屋にも良さそうですね!
【1号棟】広すぎないスペース。 お子様のお部屋や書斎など、新居での生活の夢が膨らみますね!
【1号棟】 クローゼットも内にはハンガーパイプも設置されています! そのまま洋服を掛けられるので、洋服ダンスも必要なさそうですね!
【1号棟】お探しの条件は、一人ひとり違います。飾リ過ぎないシンプルな内装と偏り過ぎないデザインで統一しております。
【1号棟】リビングダイニングスペースです。 ご家族の楽しい会話が聞こえてきますね!
【1号棟】洗濯機置き場も広めのスペースを確保しております!是非、現地にてスペースを確認してみてください!
【1号棟】普段は人目につかないスペースにもこだわりを。 使用頻度の高い場所だからこそ便利な空間に。多人数での使用も考えた便利な空間です。
【1号棟】トイレは2か所ございますので、朝の込み合う時間帯も安心です! 来客時にも気兼ねなくご使用いただけます。
【1号棟】お家の顔である玄関ホール明るく、ゆとりのスペースに下足箱収納と傘立てがおけるスペースを確保!
【1号地】車好きの方も嬉しい駐車スペース付き物件
【1号地】建物完成しました! 閑静な住宅地で小さなお子様がいるご家族にも安心。 住宅地で叶える穏やかな新生活が待ってます。 是非、現地ご内見ください!
【1号棟】バルコニーからの眺望です
【1号地】建物完成しました! 閑静な住宅地で小さなお子様がいるご家族にも安心。 住宅地で叶える穏やかな新生活が待ってます。 是非、現地ご内見ください!
【1号棟】TVモニター付インターホン!お子さまのお留守番にも安心ですね!!
食洗器
【1号棟】家事の時短に効果大の食洗器付き。高温でパワフルに洗い、温風乾燥します。手洗いよりも節水・節約が可能です。 一度使うと手放せないですよ!
給湯コントローラー
【1号棟】リビングの壁にはユニットバスのコントローラーが設置されています! お湯張りや追焚き操作もキッチンから操作でき いつでも温かいお風呂に入ることができます!
浴室乾燥コントローラー
【1号棟】カビの発生も抑制出来ます!また暖房・涼風機能も付いているので冬はいつでも暖かく、夏は涼しく、雨の日でも洗濯物が乾くのも良いですよね!梅雨の時期など重宝します。
オーケー船橋競馬場店 1200m
セブンイレブン東船橋1丁目店 434m
担当スタッフより

- 武田 亮太
- 南北両面道路に面し、陽当たり通風良好な新築戸建!3棟とも異なる間取りですので、ライフスタイルに合わせてお選びいただけます。小学校徒歩2分・中学校徒歩7分で、お子さまも無理なく通えます。現地だけでなく周辺環境のご案内も致します!送迎サービスもございますのでお気軽にお問合せ下さい!
■LDK16帖以上、リビングイン階段採用
■リビング床暖房設置
■南向きバルコニー
■カースペース2台可(車種による)
■小学校4分で通学安心
【現地見学受付中】いつでもご覧いただけます!
<資料請求>から<ご案内>まで、お気軽にお問合せください。
各棟情報
物件詳細情報
物件No.20000407754-001
| 所在地 | 千葉県船橋市東船橋7丁目15 | ||
|---|---|---|---|
| 交通 | 総武線「東船橋」駅徒歩15分 京成本線「船橋競馬場」駅徒歩8分 京成本線「大神宮下」駅徒歩12分 |
||
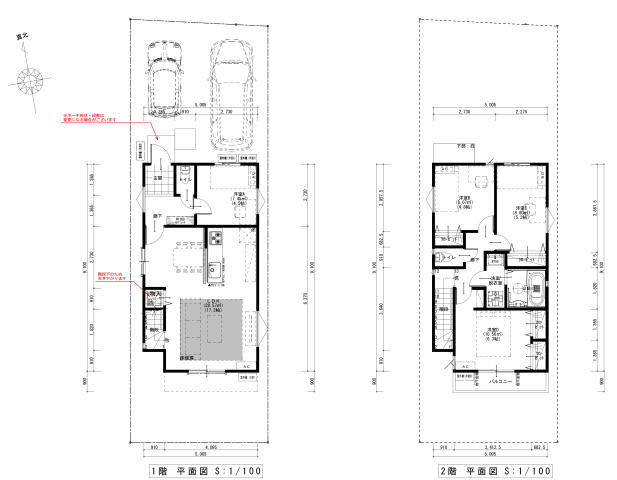
| 間取 | 4LDK (LDK17.2帖、洋室4.5帖、洋室4.8帖、洋室5.3帖、洋室6.3帖) | ||
| 土地面積 | 111.8m² 実測 (協定部分3.87m2含む) | ||
| 建物面積 | 89.42m² 実測 | ||
| 販売戸数 | 1戸 | 総戸数 | 全3戸 |
| 構造・規模 | 木造 2階建て | 築年・入居 | 2025年9月 |
| バルコニー | 南向き | 建物現況 | 完成済 |
| 建築確認番号 | 25UDI1W建00730号 | 駐車スペース | 2台可 |
| 引渡時期 | 即引渡可 | 国土法届出 | 不要 |
| 地目 | 宅地 | 用途地域 | 第一種低層住居専用地域 |
| 建ぺい率 | 40% | 容積率 | 80% |
| 都市計画 | 市街化区域 | 権利種類 | 所有権 |
| 接道 | 北東側4M公道に6M接道 南西側4M私道に6M接道 |
小学校区 | 宮本小学校(321m) |
| 中学校区 | 宮本中学校(549m) | 取引態様 | 専任媒介 |
| 設備 | 公営水道、本下水、都市ガス 床暖房、システムキッチン、システムバス、シャワー付き洗面化粧台、温水洗浄便座、テレビモニター付きインターホン、他 |
||
| 備考・制限等 | ※北東側セットバック持分有(各区画9.86m2×3分の1) ※南西側セットバック持分有(各区画7.65m2×3分の1) |
||
こだわり項目
- ※価格は物件の代金総額を表示しており、消費税が課税される場合は税込み価格です。(1,000円未満は切り上げ。)
税率は引き渡し時期により異なりますので、各物件の詳細につきましてはお問い合わせください。 - ※敷地権利が借地権のものは価格に権利金を含みます。
- ※制作中に内容が変更される場合もありますので、あらかじめご了承ください。
- ※購入の前には物件内容や契約条件についてご自身で十分な確認をしていただくようにお願いいたします。
- ※完成予想図はいずれも外構、植栽、外観等実際のものとは多少異なることがあります。
- ※CG合成の画像の場合、実際とは多少異なる場合があります。
周辺地図
周辺施設一覧
- ショッピングセンター
- スーパー
- コンビニ
- ドラッグストア
- ホームセンター
- 飲食店
- その他店舗
- 商店街
- 大学
- 専門学校
- 高校・高専
- 中学校
- 小学校
- 保育園
- 幼稚園
- 公民館・児童館
- 病院
- 郵便局
- 役所
- 図書館
- 金融機関
- 警察・消防
- 趣味・娯楽施設
- 公園・運動施設
- 周辺の街並み
- 駅
- その他
お問い合せ先
- 株式会社慶和住宅
- お電話でのお問い合わせは
047-329-1800「ホームページを見た」とお問い合わせください - 千葉県市川市市川2-2-11 ドエル市川1F
- 営業時間:AM9:00~PM7:00
- 定休日:毎週水曜日
- 免許番号:千葉県知事免許(5)第14131号
- 市川市の不動産なら慶和住宅
- 新築一戸建てをエリアから探す
- 船橋市
- 東船橋
- 1号棟 船橋市東船橋7丁目 新築 全3棟





























